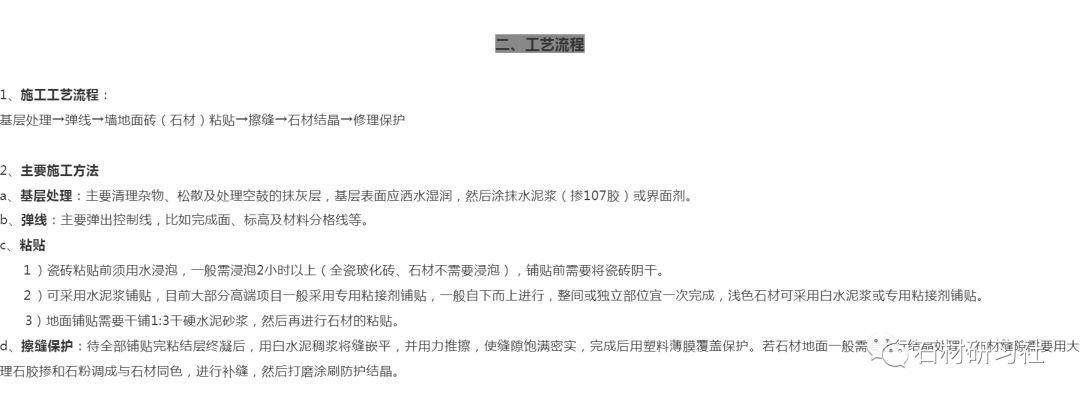
石材铺贴工艺,墙柱面、地面铺贴的工艺不同,石材与瓷砖的工艺也不尽相同,但主要的工艺流程是基本一 致的。大部分设计师对铺贴工艺也比较熟悉本节主要对部分重点梳理一下。
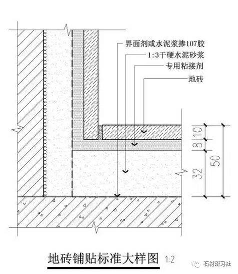
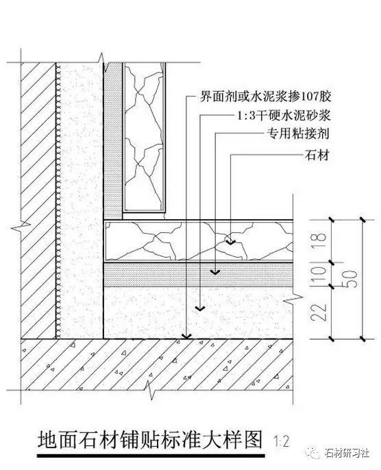
一、基本构造








隐藏式地漏铺贴大样
4、墙面石材接缝尽量不采用密封拼接,施工过程容易崩边,质量不好控制。
可以采用V型或U型凹缝的形式,采用U型工艺缝时,在横向视线范围内尽量不要设置,而且在视线的上下方的石材,设置工艺缝的位置也有区别。(这个不仅在铺贴工艺,石材干挂工艺的排版同样道理)

5、石材产生水斑、泛碱:产生这样的问题主要由于石材的防护不到位,石材应在加工完成后,涂刷六面防护剂,防止铺贴时水泥砂浆内水分渗透入石材。
四、卫生间过门石铺贴大样


五、几个收口大样
墙面石材的铺贴,铺贴高度不能太高,必要时采取挂贴结合,用铜丝内部固定。目前除卫生间墙面基本采用铺贴工艺,大部分的墙面石材均采用干挂工艺。





